資材カタログ ダウンロード 個人レンタルはじめました

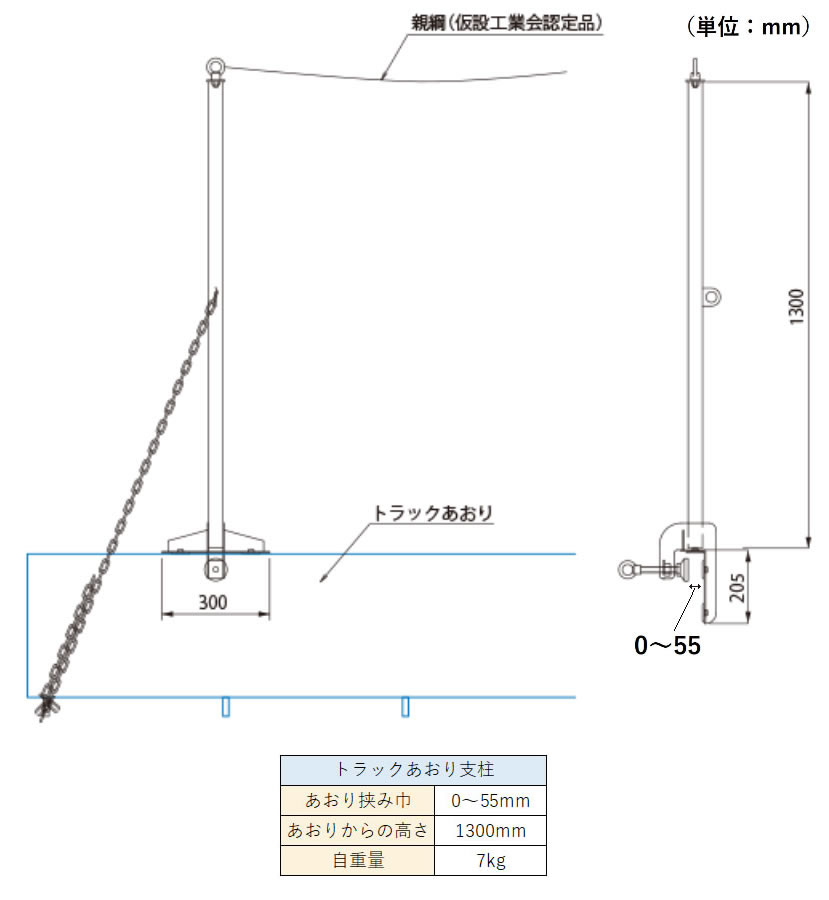
トラックあおり支柱
リース品

トラックあおり支柱

特長

荷台からの転落防止の必需品
  • トラック荷台からの転落防止用の親綱支柱です。
  • 支柱は2本で1セットです。
  • 親綱と緊張器は、別途ご注文を承ります。

仕様

トラックあおり支柱

トラックあおり支柱

注意事項

  • 本品は、トラックのあおりに取り付けるため親綱支柱ほどの強度はありません。
  • 必ずチェーンを緊張して使い、支柱は2本1セットでお使い下さい。
  • トラックの後方あおりは切らずに、固定させて使用して下さい。
  • 安全帯は巻取り式をご使用下さい。
  • 被覆ワイヤー・ワイヤーロープは使用しないで下さい。
  • 材料など立て掛けないで下さい。
  • 資材荷揚げの吊り元に使用しないで下さい。