タフマットⅡ
リース品販売品
リース品販売品

特長
工事現場・イベントなど、多用途に対応。
ニュータイプの軽量安全敷板。
- 表面のリブ模様により滑りにくく、耐圧強度に優れています。
- 軽量(40kg)のため、人手で運ぶ事ができ作業効率が向上します。
- 曲げにも強く、復元力に優れています。
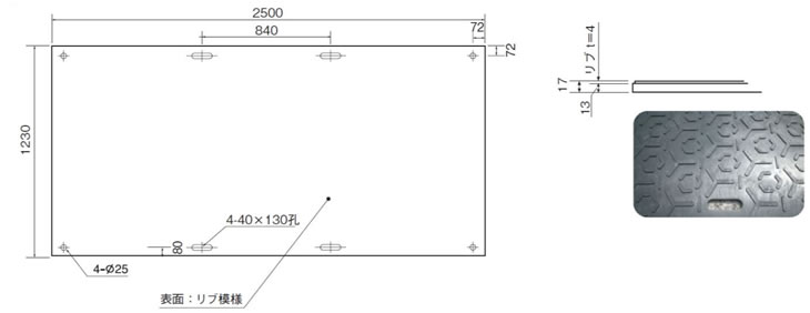
仕様
品質性能
| ① 圧縮特性試験 JIS K7181 | |
| 結果 | 2700トン/平方メートル |
|---|---|
| 圧縮強さ Mpa:26.5 | |
| ② 引張試験 JIS K7162 | |
| 結果 (参考物性) |
引張強さ Mpa:22.6 |
| ③ 曲げ強さ試験 JIS K7171 | |
| 結果 (参考物性) |
曲げ強さ Mpa:25.8 |
| 材質 | ポリエチレン |
|---|---|
| 寸法 | 1230mm×2500mm×厚さ13mm
(リブ模様厚+4mm) |
| 穴数 | 四隅丸穴:4 / 中程長穴:4 |
| 穴径 | 四隅丸穴:25mm/中程長穴:40×130mm |
| 耐荷重 | 最大車輛重量80トン |
| 自重量 | 40kg |
使用用途
- 工事作業者用通路、路面養生、作業資材置き場など。
- ゴルフ場(コース芝養生)、グラウンドへの工事車両タイヤ痕養生など。
- イベント時の仮設駐車場、機材搬入時の床養生など。
- トラック出入り時の舗装養生、荷台養生、荒地への乗り入れなど。
- 未舗装個人駐車場など。
ただし、下記の場合では使用しないで下さい。
- クレーンのアウトリガー用敷板としての使用。
- ブリッジや穴のふたとしての使用。


